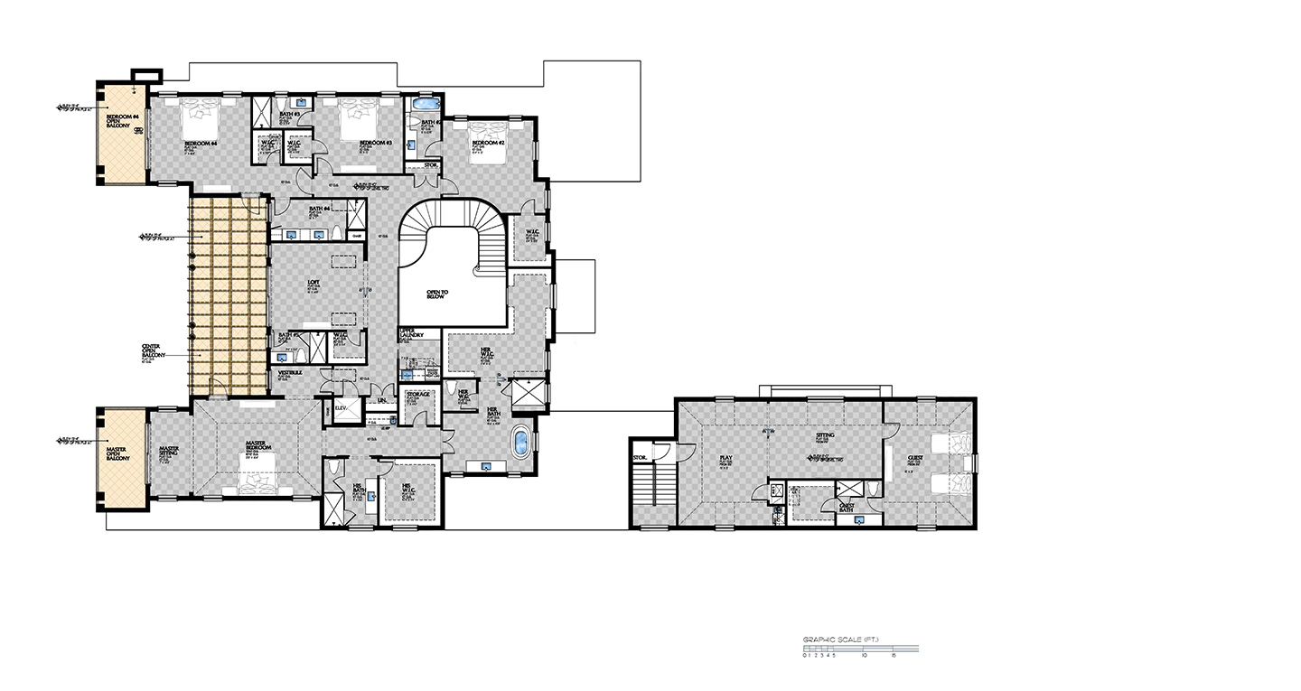
Traditional Style Estate

6125 North Ocean Boulevard, Ocean Ridge, Florida